Maison neuve à
Balschwiller
(68210) Référence :
CA2408460_2
Prix du projet : Maison avec Terrain
prix 390 000 €
- 4 pièces
- 3 chambres
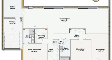
- Surface maison 120 m2
🏡 Une maison pensée pour votre quotidien à construire avec Maisons Brand OSSATURE BOIS
Vous imaginez une maison confortable, fonctionnelle et adaptée à votre mode de vie ?
Maisons Brand vous propose ce projet de maison , idéal pour accueillir une famille et évoluer dans le temps.
🏠 La maison - Modèle Maisons Brand
Avec ses 120 m², cette maison offre des volumes généreux et une organisation pratique au quotidien.
Elle se compose notamment de :
Une pièce de vie spacieuse et lumineuse, ouverte sur l'extérieur
Une cuisine ouverte
3 chambres, dont la répartition s'adapte à vos besoins
Une salle de bain familiale
Des espaces de rangement pensés pour le confort de tous
👉 Ce modèle prêt à décorer est issu de notre catalogue Maisons Brand, et reste entièrement personnalisable : agencement intérieur, prestations, finitions, options.
🌿 Le terrain
La maison est proposée sur un terrain situé BALSCHWILLER dans un environnement calme
Surface du terrain : 800 m² viabilisé
Proximité des commodités, écoles et axes principaux
💰 Budget du projet
Maison - 120 m² sur terrain 800 m² : 390.000 €
(hors frais de notaire, taxes, aménagements extérieurs)
🤝 Votre projet avec Maisons Brand
De la première esquisse à la remise des clés, Maisons Brand vous accompagne avec un interlocuteur unique, pour un projet serein et maîtrisé.
📞 Parlons de votre projet
Contact : AREND CLAIRE 06 20 73 85 20
Et si cette maison devenait la vôtre ?
Mentions légales
Terrain proposé par un partenaire foncier selon disponibilités et autorisation de publicité au prix de 120 000 €. Hors droit d'enregistrement et frais de notaire. Terrain + Maison proposés au prix de 270 000 € (Hors branchements et raccordements, papiers peints, peintures, revêtement de sol dans les chambres. Tarif modifiable sans préavis). Etiquette énergie : A. Différents modèles disponibles pour ce terrain. Assurances et garanties du constructeur (RC professionnelle, décennale, dommage ouvrage, garantie de remboursement de l'acompte, livraison à prix et délai convenu) : https://www.maisonsbrand.fr/informations-legales/.Agence BRAND Maisons Individuelles de Mulhouse (68100)
- Téléphone :
- 03 89 41 28 88
- Adressse :
- 62 rue Jacques Mugnier
68100 Mulhouse, France
