Maison neuve à
Bantzenheim
(68490) Référence :
HB2369175_1
Prix du projet : Maison avec Terrain
prix 474 021 €
- 4 pièces
- 4 chambres
- Surface maison 130 m2
VENTE : maison F4 (130 m²) à Bantzenheim
PROCHE DE MULHOUSE - MAISON 4 PIÈCES NEUVE
À moins de 27 km de l'Allemagne et du Suisse et à quelques kilomètres de Mulhouse, notre agence Maisons Brand Colmar est ravie de vous proposer cette maison de 4 pièces de 130 m² à Bantzenheim (68490).
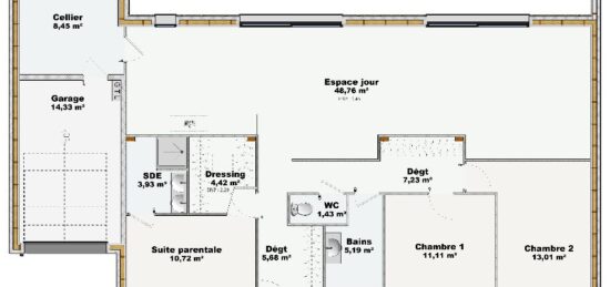
Cette maison comporte 2 niveaux. Son intérieur offre quatre chambres, une cuisine et deux salles de bains. Cette maison est neuve.
Le terrain de la propriété est de 840 m².
Il y a l'École Primaire École Primaire Publique à moins de 10 minutes à pied. Côté transports en commun, on trouve la gare Bantzenheim à moins de 10 minutes en voiture. Il y a un tennis, une boulangerie et une boucherie-charcuterie dans les environs.
Elle est à vendre pour la somme de 474 021 €.
Prenez contact avec Hervé BACHMANN (06-79-68-71-53) pour toute information sur la maison ou sur les démarches à suivre.
Mentions légales
Terrain proposé par un partenaire foncier selon disponibilités et autorisation de publicité au prix de 189 000 €. Hors droit d'enregistrement et frais de notaire. Terrain + Maison proposés au prix de 285 021 € (Hors branchements et raccordements, papiers peints, peintures, revêtement de sol dans les chambres. Tarif modifiable sans préavis). Etiquette énergie : A. Différents modèles disponibles pour ce terrain. Assurances et garanties du constructeur (RC professionnelle, décennale, dommage ouvrage, garantie de remboursement de l'acompte, livraison à prix et délai convenu) : https://www.maisonsbrand.fr/informations-legales/.Agence BRAND Maisons Individuelles de Colmar (68000)
- Téléphone :
- 03 89 41 28 88
- Adressse :
- 65 rue de la Semm
68000 Colmar, France
