Maison neuve à
Bantzenheim
(68490) Référence :
HB2369167_4
Prix du projet : Maison avec Terrain
prix 484 021 €
- 4 pièces
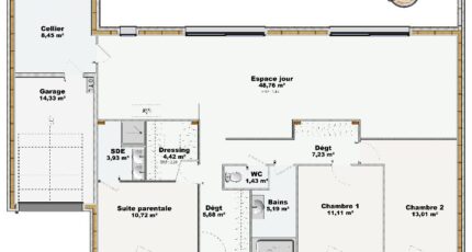
- 3 chambres
- Surface maison 120 m2
🪵 LOFT 120 - L'élégance bois, grande dimension et grand confort
Le modèle LOFT, c'est une maison bois de 120 m² à la fois design, lumineuse et conçue pour une qualité de vie familiale exceptionnelle.
💡 Pourquoi craquer pour LOFT ?
✔️ 3 chambres, dont une suite parentale avec dressing et salle d'eau
✔️ Grande pièce de vie de 48 m², avec cuisine ouverte
✔️ Garage + cellier
✔️ Matériaux naturels et sains
✔️ Isolation performante, ambiance chaleureuse
🌳 Conçue à partir de bois issus de forêts gérées durablement, la maison LOFT s'inscrit dans une démarche éthique et écologique.
📞 Hervé Bachmann - 06 79 68 71 53 -
Le bonheur, c'est simple comme Maisons Brand.
Et si votre bonheur commençait ici ?
Mentions légales
Terrain proposé par un partenaire foncier selon disponibilités et autorisation de publicité au prix de 301 725 €. Hors droit d'enregistrement et frais de notaire. Terrain + Maison proposés au prix de 182 296 € (Hors branchements et raccordements, papiers peints, peintures, revêtement de sol dans les chambres. Tarif modifiable sans préavis). Etiquette énergie : A. Différents modèles disponibles pour ce terrain. Assurances et garanties du constructeur (RC professionnelle, décennale, dommage ouvrage, garantie de remboursement de l'acompte, livraison à prix et délai convenu) : https://www.maisonsbrand.fr/informations-legales/.Agence BRAND Maisons Individuelles de Colmar (68000)
- Téléphone :
- 03 89 41 28 88
- Adressse :
- 65 rue de la Semm
68000 Colmar, France
