Maison neuve à
Bantzenheim
(68490) Référence :
HB2372116_1
Prix du projet : Maison avec Terrain
prix 292 002 €
- 4 pièces
- 3 chambres
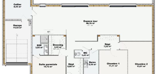
- Surface maison 83 m2
🌾 ORIGIN 83 - L'essentiel au naturel
La maison ORIGIN, c'est le choix de la simplicité intelligente et de la qualité de vie, dans un format compact et ultra fonctionnel.
🌿 83 m² bien pensés :
✔️ 3 chambres avec rangements
✔️ Salon-séjour de 36 m² lumineux
✔️ Salle de bains confortable + WC séparé
✔️ Garage avec cellier
✔️ Isolation naturelle, ambiance saine et chaleureuse
🌱 Et bien sûr, ossature bois issue de forêts gérées durablement.
📞 Contactez Hervé Bachmann - 06 79 68 71 53 -
Le bonheur, c'est simple comme Maisons Brand.
Et si votre bonheur commençait ici ?
Mentions légales
Terrain proposé par un partenaire foncier selon disponibilités et autorisation de publicité au prix de 80 650 €. Hors droit d'enregistrement et frais de notaire. Terrain + Maison proposés au prix de 211 352 € (Hors branchements et raccordements, papiers peints, peintures, revêtement de sol dans les chambres. Tarif modifiable sans préavis). Etiquette énergie : A. Différents modèles disponibles pour ce terrain. Assurances et garanties du constructeur (RC professionnelle, décennale, dommage ouvrage, garantie de remboursement de l'acompte, livraison à prix et délai convenu) : https://www.maisonsbrand.fr/informations-legales/.Agence BRAND Maisons Individuelles de Colmar (68000)
- Téléphone :
- 03 89 41 28 88
- Adressse :
- 65 rue de la Semm
68000 Colmar, France
