Maison neuve à
Bantzenheim
(68490) Référence :
HB2372125_2
Prix du projet : Maison avec Terrain
prix 315 148 €
- 4 pièces
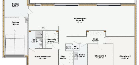
- 3 chambres
- Surface maison 89 m2
🏡 Modèle LIMA - Le cocon moderne, optimisé et confortable
Vous rêvez d'un intérieur chaleureux, moderne, et pensé pour chaque moment du quotidien ?
Le modèle LIMA, avec ses 89 m² astucieusement agencés, vous offre une vie simple, fluide et confortable.
💡 Pourquoi choisir LIMA ?
✔️ 3 chambres confortables
✔️ Grande pièce de vie de 40 m², baignée de lumière
✔️ Cuisine ouverte conviviale
✔️ Garage intégré
✔️ Chauffage au sol par pompe à chaleur
✔️ Double vitrage pour un confort thermique optimal
✔️ Isolation performante
✅ Livrée clé en main, avec frais de notaire et branchements inclus. Une vraie tranquillité d'esprit.
📞 Contactez Hervé Bachmann - 06 79 68 71 53 -
Le bonheur, c'est simple comme Maisons Brand.
Et si votre bonheur commençait ici ?
Mentions légales
Terrain proposé par un partenaire foncier selon disponibilités et autorisation de publicité au prix de 88 150 €. Hors droit d'enregistrement et frais de notaire. Terrain + Maison proposés au prix de 226 998 € (Hors branchements et raccordements, papiers peints, peintures, revêtement de sol dans les chambres. Tarif modifiable sans préavis). Etiquette énergie : A. Différents modèles disponibles pour ce terrain. Assurances et garanties du constructeur (RC professionnelle, décennale, dommage ouvrage, garantie de remboursement de l'acompte, livraison à prix et délai convenu) : https://www.maisonsbrand.fr/informations-legales/.Agence BRAND Maisons Individuelles de Colmar (68000)
- Téléphone :
- 03 89 41 28 88
- Adressse :
- 65 rue de la Semm
68000 Colmar, France
