Maison neuve à
Benfeld
(67230) Référence :
VM2327526_2
Prix du projet : Maison avec Terrain
prix 389 000 €
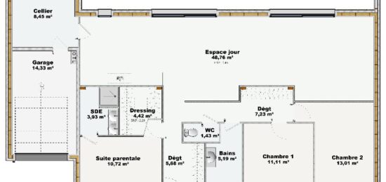
- 4 pièces
- 3 chambres
- Surface maison 100 m2
Et si vous construisez votre Maisons Brand à BENFELD ?
Petite ville dynamique et idéalement située entre COLMAR et STRASBOURG, elle bénéficie d'écoles, de crèches, de pharmacies et de nombreux commerces, de restaurants, d'un cinéma.
Idéal pour les familles actives en quête de proximité avec la nature.
Cette maison n'est qu'une suggestion, contactez moi pour plus de renseignement, je me ferai un plaisir de vous accompagner et de donner vie à votre projet !
Violaine MICHEL
07 85 07 73 84
Le Bonheur c'est simple comme Maisons Brand !
Mentions légales
Terrain proposé par un partenaire foncier selon disponibilités et autorisation de publicité au prix de 112 900 €. Hors droit d'enregistrement et frais de notaire. Maison proposée, avec un contrat de construction de maison individuelle, dans le cadre de la loi du 19/12/1990, au prix de 276 100 € (Hors branchements et raccordements, papiers peints, peintures, revêtement de sol dans les chambres, qui sont chiffrés dans les travaux qui restent à charge du client. Tarif modifiable sans préavis). Étiquette énergie : A. Différents modèles disponibles pour ce terrain. Assurances et garanties du constructeur comprises (RC professionnelle, décennale, dommage ouvrage).Agence BRAND Maisons Individuelles de Colmar (68000)
- Téléphone :
- 03 89 41 28 88
- Adressse :
- 65 rue de la Semm
68000 Colmar, France
