Maison neuve à
Bennwihr
(68630) Référence :
BJ2311318_4
Prix du projet : Maison avec Terrain
prix 434 000 €
- 4 pièces
- 3 chambres
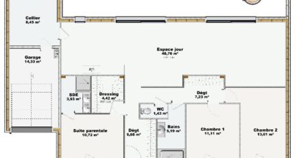
- Surface maison 120 m2
VENTE d'une maison F4 (120 m²) à Bennwihr
PROCHE DE COLMAR - MAISON 4 PIÈCES NEUVE
À vendre : localisée à 29 km de la frontière allemande et à 5 km de Colmar, à Bennwihr (68630), Maisons Brand vous présente cette maison de 4 pièces de plain-pied de 120 m². Conçue de plain-pied, elle dispose de trois chambres, d'une cuisine et de deux salles de bains.
Le terrain du bien s'étend sur 519 m².
La maison est neuve.
On trouve l'École Primaire Intercommunale à moins de 10 minutes à pied. Niveau transports, il y a sept gares à moins de 10 minutes en voiture. On trouve trois commerces, deux boulangeries et une boucherie-charcuterie à quelques minutes de la maison.
Elle est proposée à l'achat pour 434 000 €.
Prenez contact avec notre agence (JOLION Bruno : 06-09-15-30-79) pour tout renseignement sur cette maison ou sur les démarches à suivre. Maisons Brand Entzheim vous accompagne dans tous vos projets immobiliers et à toutes les étapes de votre projet.
Frais de notaire et branchements inclus.
Mentions légales
Terrain proposé par un partenaire foncier selon disponibilités et autorisation de publicité au prix de 149 800 €. Hors droit d'enregistrement et frais de notaire. Maison proposée, avec un contrat de construction de maison individuelle, dans le cadre de la loi du 19/12/1990, au prix de 284 200 € (Hors branchements et raccordements, papiers peints, peintures, revêtement de sol dans les chambres, qui sont chiffrés dans les travaux qui restent à charge du client. Tarif modifiable sans préavis). Étiquette énergie : A. Différents modèles disponibles pour ce terrain. Assurances et garanties du constructeur comprises (RC professionnelle, décennale, dommage ouvrage).Agence BRAND Maisons Individuelles de Entzheim (67960)
- Téléphone :
- 03 89 41 28 88
- Adressse :
- 10 rue des Hérons
67960 Entzheim, France
