Maison neuve à
Biltzheim
(68127) Référence :
HB2372760_2
Prix du projet : Maison avec Terrain
prix 352 457 €
- 4 pièces
- 3 chambres
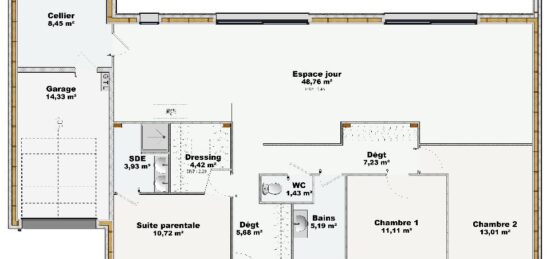
- Surface maison 81 m2
Découvrez le modèle LOME, vivre en plain-pied !
Vous rêvez d'un cocon chaleureux, moderne et parfaitement optimisé ?
Le modèle LOME est fait pour vous !
Près de 81 m² de surface au sol
Pourquoi choisir le modèle LOME ?
✔️ Un style moderne et épuré
✔️ Un espace de vie optimisé
✔️ 3 chambres
✔️chauffage au sol
✔️Garage intégré
Le petit plus ! Une architecture de plain-pied avec garage intégré !
🏡 Un espace de vie fonctionnel et lumineux
Le rez-de-chaussée du modèle LOME a été conçu pour offrir un cadre de vie agréable et fluide. Avec une surface totale de 45 m²
✔️ Une pièce de vie spacieuse
L'espace principal comprend un salon-séjour lumineux, ouvert sur l'extérieur grâce à une porte-fenêtre qui donne accès au jardin ou à la terrasse. La cuisine ouverte, judicieusement intégrée, permet de profiter pleinement de vos moments
✔️Un WC indépendant
Un espace nuit confortable et bien agencé
✔️ 3 chambres
✔️ Une salle de bain agréable et fonctionnelle
Une question ? Contactez Hervé Bachmann (06 79 68 71 53) dès maintenant pour plus d'informations et venez découvrir votre future maison !
Le bonheur c'est simple comme Maisons Brand
Les finitions sont disponibles à la demande.
Frais de notaire et branchements inclus
Mentions légales
Terrain proposé par un partenaire foncier selon disponibilités et autorisation de publicité au prix de 129 937 €. Hors droit d'enregistrement et frais de notaire. Terrain + Maison proposés au prix de 222 520 € (Hors branchements et raccordements, papiers peints, peintures, revêtement de sol dans les chambres. Tarif modifiable sans préavis). Etiquette énergie : A. Différents modèles disponibles pour ce terrain. Assurances et garanties du constructeur (RC professionnelle, décennale, dommage ouvrage, garantie de remboursement de l'acompte, livraison à prix et délai convenu) : https://www.maisonsbrand.fr/informations-legales/.Agence BRAND Maisons Individuelles de Colmar (68000)
- Téléphone :
- 03 89 41 28 88
- Adressse :
- 65 rue de la Semm
68000 Colmar, France
