Maison neuve à
Biltzheim
(68127) Référence :
HB2372794_2
Prix du projet : Maison avec Terrain
prix 321 370 €
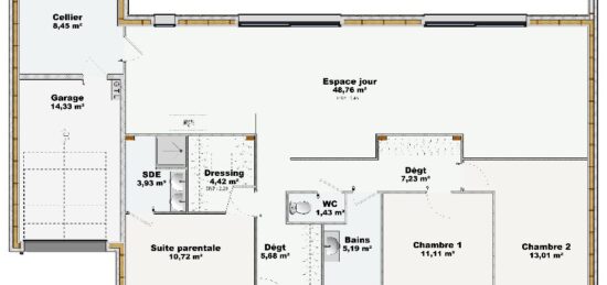
- 4 pièces
- 3 chambres
- Surface maison 81 m2
🌿 Modèle LOMÉ - Le plain-pied chaleureux et bien pensé
Le modèle LOMÉ, c'est tout le plaisir du plain-pied optimisé dans une maison fonctionnelle, moderne et prête à vivre.
🏠 81 m² tout en confort :
✔️ 3 chambres
✔️ 45 m² de pièce de vie, lumineuse et fluide
✔️ Cuisine ouverte
✔️ Garage intégré
✔️ Chauffage au sol par pompe à chaleur
✔️ Double vitrage, isolation de qualité
✅ Comme toujours chez Maisons Brand : frais de notaire + branchements inclus.
Vous n'avez plus qu'à emménager.
📞 Hervé Bachmann - 06 79 68 71 53 -
Le bonheur, c'est simple comme Maisons Brand.
Et si votre bonheur commençait ici ?
Mentions légales
Terrain proposé par un partenaire foncier selon disponibilités et autorisation de publicité au prix de 101 153 €. Hors droit d'enregistrement et frais de notaire. Terrain + Maison proposés au prix de 220 217 € (Hors branchements et raccordements, papiers peints, peintures, revêtement de sol dans les chambres. Tarif modifiable sans préavis). Etiquette énergie : A. Différents modèles disponibles pour ce terrain. Assurances et garanties du constructeur (RC professionnelle, décennale, dommage ouvrage, garantie de remboursement de l'acompte, livraison à prix et délai convenu) : https://www.maisonsbrand.fr/informations-legales/.Agence BRAND Maisons Individuelles de Colmar (68000)
- Téléphone :
- 03 89 41 28 88
- Adressse :
- 65 rue de la Semm
68000 Colmar, France
