Maison neuve à
Birkenwald
(67440) Référence :
PE2424198_1
Prix du projet : Maison avec Terrain
prix 385 000 €
- 4 pièces
- 4 chambres
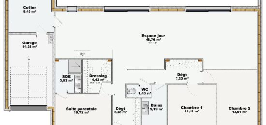
- Surface maison 118 m2
VENTE : maison de 4 pièces (118 m²) à Birkenwald
EMPLACEMENT PRIVILÉGIÉ - MAISON 4 PIÈCES NEUVE
En périphérie d'Allenwiller, Maisons Brand Entzheim vous propose cette maison de 4 pièces de 118 m² et de 500 m² de terrain bénéficiant d'un emplacement d'exception dans Birkenwald (67440).
Cette maison comporte 2 niveaux. Son intérieur est composé de quatre chambres, d'une cuisine et de deux salles de bains. La maison est neuve.
Cette maison se trouve dans un quartier prisé. Des écoles de tous niveaux (de la maternelle au lycée) sont implantées à moins de 10 minutes en voiture, tout comme deux crèches à moins de 10 minutes à pied. Niveau transports, on trouve la gare Saverne à moins de 10 minutes en voiture. Il y a des tennis, des bibliothèques, deux bassins de natation, un port de plaisance, des boulangeries, des supermarchés, des commerces, des épiceries et une supérette à quelques minutes. Ne manquez pas le marché Place de Gaulle tous les jeudis matin.
Elle est proposée à l'achat pour 385 000 €.
Contactez notre agence (EPP Patrick ) pour obtenir de plus amples informations sur la maison, sur les modalités de vente ou sur les démarches à suivre. Donnez vie à vos projets immobiliers avec Maisons Brand Entzheim.
Mentions légales
Terrain proposé par un partenaire foncier selon disponibilités et autorisation de publicité au prix de 109 500 €. Hors droit d'enregistrement et frais de notaire. Terrain + Maison proposés au prix de 385 000 € (Hors branchements et raccordements, papiers peints, peintures, revêtement de sol dans les chambres. Tarif modifiable sans préavis). Etiquette énergie : A. Différents modèles disponibles pour ce terrain. Assurances et garanties du constructeur (RC professionnelle, décennale, dommage ouvrage, garantie de remboursement de l'acompte, livraison à prix et délai convenu) : https://www.maisonsbrand.fr/informations-legales/.Agence BRAND Maisons Individuelles de Entzheim (67960)
- Téléphone :
- 03 89 41 28 88
- Adressse :
- 10 rue des Hérons
67960 Entzheim, France
