Maison neuve à
Carspach
(68130) Référence :
CA2451763_3
Prix du projet : Maison avec Terrain
prix 527 900 €
- 5 pièces
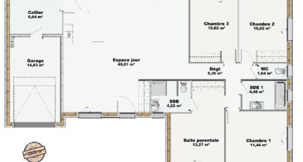
- 4 chambres
- Surface maison 113 m2
MAISONS BRAND VOUS PROPORSE CE BEAU PROJET DE CONSTRUCTION à Carspach d'une maison de 5 pièces (113 m²) à OSSATURE BOIS
IDÉALEMENT SITUÉE - MAISON 5 PIÈCES NEUVE
En vente à moins de 34 km du Suisse et de l'Allemagne et à deux pas de Mulhouse, nous vous proposons cette maison de 5 pièces de plain-pied de 113 m² et de 1 197 m² de terrain idéalement située dans Carspach (68130). Conçue de plain-pied, elle compte quatre chambres, une cuisine et deux salles de bains.
La maison possède un garage
Elle se trouve dans un secteur convoité. Il y a quatre établissements scolaires à moins de 10 minutes à pied,, parmi lesquels le Lycée Professionnel Privé Institut Sonnenberg-Lycée des Métiers et le Lycée Technologique Privé Institut Sonnenberg et une crèche. Niveau transports, on trouve quatre gares à moins de 10 minutes en voiture. Il y a un commerce et deux boucheries-charcuteries à quelques minutes.
Son prix de vente est de 527 900 €.
Prenez contact avec MAISONS BRAND (Claire AREND) pour toute information sur cette maison. Maisons Brand Mulhouse vous accompagne à toutes les étapes de votre projet et dans tous vos projets immobiliers.
Mentions légales
Terrain proposé par un partenaire foncier selon disponibilités et autorisation de publicité au prix de 268 000 €. Hors droit d'enregistrement et frais de notaire. Terrain + Maison proposés au prix de 527 900 € (Hors branchements et raccordements, papiers peints, peintures, revêtement de sol dans les chambres. Tarif modifiable sans préavis). Etiquette énergie : A. Différents modèles disponibles pour ce terrain. Assurances et garanties du constructeur (RC professionnelle, décennale, dommage ouvrage, garantie de remboursement de l'acompte, livraison à prix et délai convenu) : https://www.maisonsbrand.fr/informations-legales/.Agence BRAND Maisons Individuelles de Mulhouse (68100)
- Téléphone :
- 03 89 41 28 88
- Adressse :
- 62 rue Jacques Mugnier
68100 Mulhouse, France
