Maison neuve à
Didenheim
(68350) Référence :
FB2391106_4
Prix du projet : Maison avec Terrain
prix 425 000 €
- 5 pièces
- 4 chambres
- Surface maison 113 m2
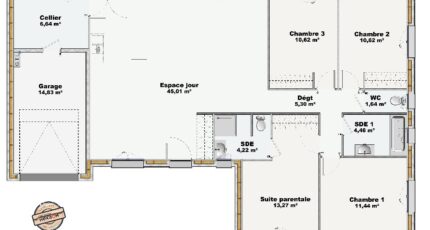
Bienvenue dans le modèle LUMI, une maison contemporaine pensée pour répondre aux besoins d'aujourd'hui, entre esthétique moderne et fonctionnalité quotidienne.
Dès l'entrée, vous serez séduit par un espace de vie de 45 m², baigné de lumière grâce à de larges ouvertures sur l'extérieur. Le salon-séjour, spacieux et convivial, est prolongé grâce à la cuisine ouverte, parfaitement intégrée pour favoriser les moments de partage en famille ou entre amis.
Avec ses 113 m² de surface au sol, cette maison à ossature bois vous offre des volumes généreux et bien équilibrés pour une vie de famille épanouie.
- 4 chambres confortables, dont une suite parentale avec espace placard et salle d'eau privative avec WC
Une salle de bains familiale
Un WC indépendant
Un garage intégré avec cellier, idéal pour le rangement et la fonctionnalité
Et parce que chaque famille a des besoins spécifiques, nous vous proposons un pack d'options personnalisables. Vous imaginez, nous concrétisons.
Vous rêvez d'un chez-vous spacieux, lumineux, chaleureux et résolument moderne ?
Le modèle LUMI vous attend.
📞 Contactez-nous dès aujourd'hui pour plus d'informations et venez découvrir une maison qui conjugue style, confort et qualité.
Mentions légales
Terrain proposé par un partenaire foncier selon disponibilités et autorisation de publicité au prix de 171 000 €. Hors droit d'enregistrement et frais de notaire. Terrain + Maison proposés au prix de 254 000 € (Hors branchements et raccordements, papiers peints, peintures, revêtement de sol dans les chambres. Tarif modifiable sans préavis). Etiquette énergie : A. Différents modèles disponibles pour ce terrain. Assurances et garanties du constructeur (RC professionnelle, décennale, dommage ouvrage, garantie de remboursement de l'acompte, livraison à prix et délai convenu) : https://www.maisonsbrand.fr/informations-legales/.Agence BRAND Maisons Individuelles de Mulhouse (68100)
- Téléphone :
- 03 89 41 28 88
- Adressse :
- 62 rue Jacques Mugnier
68100 Mulhouse, France
