Maison neuve à
Haguenau
(67500) Référence :
CG2353693_3
Prix du projet : Maison avec Terrain
prix 345 000 €
- 4 pièces
- 3 chambres
- Surface maison 81 m2
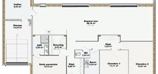
Découvrez le modèle LOME, vivre en plain-pied !
Vous rêvez d'un cocon chaleureux, moderne et parfaitement optimisé ?
Le modèle LOME est fait pour vous !
Près de 81 m² de surface au sol
Pourquoi choisir le modèle LOME ?
Un style moderne et épuré
Un espace de vie optimisé
3 chambres
Chauffage au sol
Garage intégré
Le petit plus ! Une architecture de plain-pied avec garage intégré !
Un espace de vie fonctionnel et lumineux
Le rez-de-chaussée du modèle LOME a été conçu pour offrir un cadre de vie agréable et fluide. Avec une surface totale de 45 m²
Une pièce de vie spacieuse
L'espace principal comprend un salon-séjour lumineux, ouvert sur l'extérieur grâce à une porte-fenêtre qui donne accès au jardin ou à la terrasse. La cuisine ouverte, judicieusement intégrée, permet de profiter pleinement de vos moments
Un WC indépendant
Un espace nuit confortable et bien agencé
3 chambres
Une salle de bain agréable et fonctionnelle
Une question ? Contactez-nous dès maintenant pour plus d'informations et venez découvrir votre future maison !
Le bonheur c'est simple comme Maisons Brand
Les finitions sont disponibles à la demande. (prix affiché en PAD)
Mentions légales
Terrain proposé par un partenaire foncier selon disponibilités et autorisation de publicité au prix de 180 000 €. Hors droit d'enregistrement et frais de notaire. Maison proposée, avec un contrat de construction de maison individuelle, dans le cadre de la loi du 19/12/1990, au prix de 165 000 € (Hors branchements et raccordements, papiers peints, peintures, revêtement de sol dans les chambres, qui sont chiffrés dans les travaux qui restent à charge du client. Tarif modifiable sans préavis). Étiquette énergie : A. Différents modèles disponibles pour ce terrain. Assurances et garanties du constructeur comprises (RC professionnelle, décennale, dommage ouvrage).Agence BRAND Maisons Individuelles de Entzheim (67960)
- Téléphone :
- 03 89 41 28 88
- Adressse :
- 10 rue des Hérons
67960 Entzheim, France
