Maison neuve à
Haguenau
(67500) Référence :
CG2353693_4
Prix du projet : Maison avec Terrain
prix 435 000 €
- 4 pièces
- 3 chambres
- Surface maison 120 m2
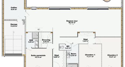
Modèle LOFT (Ossature bois MAISONS BRAND)
Bienvenue dans le modèle LOFT, une maison pensée pour vous offrir un cadre de vie chaleureux, pratique et résolument moderne.
Dès les premiers pas, on découvre un espace de vie de plus de 48 m², lumineux et spacieux. Le salon-séjour s'ouvre largement sur l'extérieur grâce à de grandes baies vitrées, tandis que la cuisine ouverte, astucieusement intégrée, invite à la convivialité.
Avec ses 120 m² de surface au sol, ce modèle à ossature bois vous offre une maison généreuse et bien agencée, idéale pour une vie de famille épanouie.
- 3 chambres confortables dont une suite parentale avec dressing et salle d'eau, pensées pour le repos et l'intimité
- Une salle de bains confortable
- Un WC indépendant
- Un garage intégré avec cellier, pour plus de praticité au quotidien
Et parce que vos envies méritent d'être réalisées, nous vous proposons un pack d'options personnalisables : tout est prévu pour que votre maison vous ressemble.
Vous rêvez d'une maison à la fois moderne, fonctionnelle et accueillante ?
Le modèle LOFT vous attend.
📞 Contactez-nous dès maintenant pour en savoir plus, et venez découvrir cette maison qui conjugue design et qualité de vie.
Le bonheur c'est simple comme Maisons Brand !
Mentions légales
Terrain proposé par un partenaire foncier selon disponibilités et autorisation de publicité au prix de 180 000 €. Hors droit d'enregistrement et frais de notaire. Maison proposée, avec un contrat de construction de maison individuelle, dans le cadre de la loi du 19/12/1990, au prix de 255 000 € (Hors branchements et raccordements, papiers peints, peintures, revêtement de sol dans les chambres, qui sont chiffrés dans les travaux qui restent à charge du client. Tarif modifiable sans préavis). Étiquette énergie : A. Différents modèles disponibles pour ce terrain. Assurances et garanties du constructeur comprises (RC professionnelle, décennale, dommage ouvrage).Agence BRAND Maisons Individuelles de Entzheim (67960)
- Téléphone :
- 03 89 41 28 88
- Adressse :
- 10 rue des Hérons
67960 Entzheim, France
