Maison neuve à
Hirsingue
(68560) Référence :
CA2430573_3
Prix du projet : Maison avec Terrain
prix 354 800 €
- 5 pièces
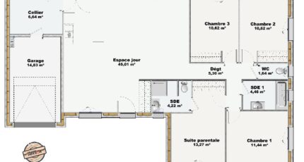
- 4 chambres
- Surface maison 113 m2
MAISONS BRAND VOUS PROPOSE
Hirsingue : maison F5 (113 m²) en vente
IDÉALEMENT SITUÉE -
Proche du Suisse et de l'Allemagne et à 20 km de Mulhouse, ayez le coup de coeur pour cette maison de 5 pièces de plain-pied de 113 m² à vendre, idéalement située dans Hirsingue (68560).
Son intérieur se divise en quatre chambres, une cuisine et deux salles de bains ainsi qu'un garage
Le terrain de la propriété est de 526 m².
Il se trouve dans un quartier recherché. L'École Primaire l'Envol du Petit Prince est implantée à moins de 10 minutes à pied. Côté transports, on trouve deux gares (Altkirch et Walheim) à moins de 10 minutes en voiture. Il y a des commerces, trois boulangeries, un bureau de poste, une épicerie et une supérette à proximité de la maison.
Il est proposé à l'achat pour 354 800 €.
Contactez MAISONS BRAND, Claire AREND pour toute information sur la maison, sur les démarches à suivre ou sur les modalités de vente. Faites de vos projets immobiliers une réalité avec Maisons Brand Mulhouse.
Mentions légales
Terrain proposé par un partenaire foncier selon disponibilités et autorisation de publicité au prix de 94 900 €. Hors droit d'enregistrement et frais de notaire. Terrain + Maison proposés au prix de 354 800 € (Hors branchements et raccordements, papiers peints, peintures, revêtement de sol dans les chambres. Tarif modifiable sans préavis). Etiquette énergie : A. Différents modèles disponibles pour ce terrain. Assurances et garanties du constructeur (RC professionnelle, décennale, dommage ouvrage, garantie de remboursement de l'acompte, livraison à prix et délai convenu) : https://www.maisonsbrand.fr/informations-legales/.Agence BRAND Maisons Individuelles de Mulhouse (68100)
- Téléphone :
- 03 89 41 28 88
- Adressse :
- 62 rue Jacques Mugnier
68100 Mulhouse, France
