Maison neuve à
Katzenthal
(68230) Référence :
BJ2296077_3
Prix du projet : Maison avec Terrain
prix 443 000 €
- 5 pièces
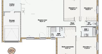
- 4 chambres
- Surface maison 113 m2
Katzenthal : maison de 5 pièces (113 m²) en vente
PROCHE DE COLMAR - MAISON 5 PIÈCES NEUVE
À quelques kilomètres de l'Allemagne et à 9 km de Colmar, nous vous proposons cette maison de 5 pièces de plain-pied de 113 m² à Katzenthal (68230). Conçue de plain-pied, elle dispose de quatre chambres, d'une cuisine et de deux salles de bains.
Le terrain de la maison s'étend sur 505 m².
Cette maison est neuve.
Niveau transports, il y a neuf gares à moins de 10 minutes en voiture. On trouve une boulangerie et un commerce dans les environs.
Elle est à vendre pour la somme de 443 000 €.
Contactez notre agence (JOLION Bruno : 06-09-15-30-79) pour obtenir de plus amples informations sur cette maison. Faites de vos projets immobiliers une réalité avec Maisons Brand.
Frais de notaire et branchements inclus.
Mentions légales
Terrain proposé par un partenaire foncier selon disponibilités et autorisation de publicité au prix de 176 750 €. Hors droit d'enregistrement et frais de notaire. Maison proposée, avec un contrat de construction de maison individuelle, dans le cadre de la loi du 19/12/1990, au prix de 266 250 € (Hors branchements et raccordements, papiers peints, peintures, revêtement de sol dans les chambres, qui sont chiffrés dans les travaux qui restent à charge du client. Tarif modifiable sans préavis). Étiquette énergie : A. Différents modèles disponibles pour ce terrain. Assurances et garanties du constructeur comprises (RC professionnelle, décennale, dommage ouvrage).Agence BRAND Maisons Individuelles de Entzheim (67960)
- Téléphone :
- 03 89 41 28 88
- Adressse :
- 10 rue des Hérons
67960 Entzheim, France
