Maison neuve à
Kertzfeld
(67230) Référence :
VM2373796_2
Prix du projet : Maison avec Terrain
prix 410 000 €
- 4 pièces
- 3 chambres
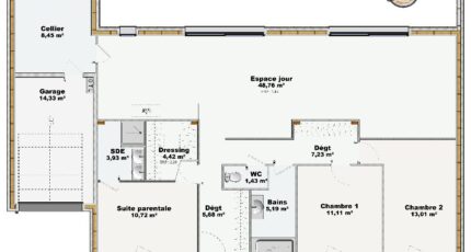
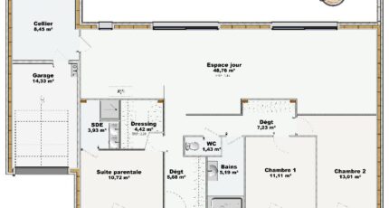
- Surface maison 120 m2
Construisez votre Maison Brand à KERTZFELD !
Situé au coeur de la charmante commune de Kertzfeld, ce terrain constructible de 501 m² offre une belle opportunité pour concrétiser votre projet immobilier. Idéalement orienté, il bénéficie d'une belle exposition au soleil et d'un environnement calme. Le terrain est viabilisé et prêt à accueillir votre future maison.
Kertzfeld est une commune qui séduit aussi bien les familles que les personnes à la recherche de calme, tout en étant suffisamment bien desservie pour profiter des avantages de la vie urbaine à proximité.
Contactez moi pour plus de renseignement,
Violaine MICHEL 07 85 07 73 84
Le Bonheur c'est simple comme Maisons Brand !
Mentions légales
Terrain proposé par un partenaire foncier selon disponibilités et autorisation de publicité au prix de 142 785 €. Hors droit d'enregistrement et frais de notaire. Terrain + Maison proposés au prix de 267 215 € (Hors branchements et raccordements, papiers peints, peintures, revêtement de sol dans les chambres. Tarif modifiable sans préavis). Etiquette énergie : A. Différents modèles disponibles pour ce terrain. Assurances et garanties du constructeur (RC professionnelle, décennale, dommage ouvrage, garantie de remboursement de l'acompte, livraison à prix et délai convenu) : https://www.maisonsbrand.fr/informations-legales/.Agence BRAND Maisons Individuelles de Colmar (68000)
- Téléphone :
- 03 89 41 28 88
- Adressse :
- 65 rue de la Semm
68000 Colmar, France
