Maison neuve à
Marckolsheim
(67390) Référence :
BJ2416381_2
Prix du projet : Maison avec Terrain
prix 424 000 €
- 4 pièces
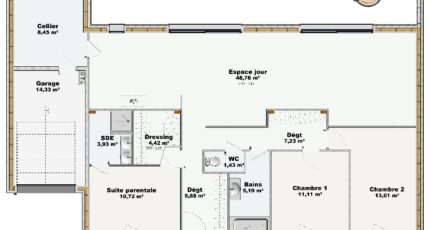
- 3 chambres
- Surface maison 120 m2
VENTE : maison à ossature bois (120 m²) à Marckolsheim
PROCHE DE COLMAR - MAISON 4 PIÈCES NEUVE
À 6 km de la frontière allemande et à deux pas de Colmar, à vendre à Marckolsheim (67390), nous vous proposons cette maison de 4 pièces de plain-pied de 120 m².
Elle inclut trois chambres, une cuisine et deux salles de bains. La maison est neuve.
Le terrain du bien est de 585 m².
Quatre établissements scolaires sont implantés à moins de 10 minutes à pied. On trouve un bassin de natation, un tennis, des commerces, des boulangeries, une épicerie, un bureau de poste et une boucherie-charcuterie dans les environs.
Elle est à vendre pour la somme de 424 000 €.
Contactez Bruno JOLION (tél : 06-09-15-30-79) pour obtenir de plus amples renseignements sur cette maison.
Mentions légales
Terrain proposé par un partenaire foncier selon disponibilités et autorisation de publicité au prix de 134 550 €. Hors droit d'enregistrement et frais de notaire. Terrain + Maison proposés au prix de 289 450 € (Hors branchements et raccordements, papiers peints, peintures, revêtement de sol dans les chambres. Tarif modifiable sans préavis). Etiquette énergie : A. Différents modèles disponibles pour ce terrain. Assurances et garanties du constructeur (RC professionnelle, décennale, dommage ouvrage, garantie de remboursement de l'acompte, livraison à prix et délai convenu) : https://www.maisonsbrand.fr/informations-legales/.Agence BRAND Maisons Individuelles de Entzheim (67960)
- Téléphone :
- 03 89 41 28 88
- Adressse :
- 10 rue des Hérons
67960 Entzheim, France
