Maison neuve à
Morschwiller-le-Bas
(68790) Référence :
FB2347172_2
Prix du projet : Maison avec Terrain
prix 409 405 €
- 4 pièces
- 3 chambres
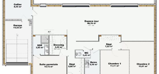
- Surface maison 120 m2
Maison neuve 4 pièces - 120 m² à Morschwiller-le-Bas
PROJET DE CONSTRUCTION EN EXCLUSIVITÉ - EMPLACEMENT IDÉAL
À Morschwiller-le-Bas (68790), à seulement 5 km de Mulhouse et à moins de 30 km de la Suisse et de l'Allemagne, découvrez ce projet de construction exclusif d'une maison de plain-pied de 120 m², implantée sur un terrain de 441 m² dans un quartier recherché.
Cette maison moderne, conçue pour offrir confort et fonctionnalité, propose :
3 chambres spacieuses,
une cuisine,
2 salles de bains,
le tout en plain-pied, pour une circulation simple et un confort optimal au quotidien.
Le projet se situe dans un secteur très attractif, à proximité immédiate des commodités :
École Primaire Alfred Giess à moins de 10 minutes à pied,
Boulangerie, supermarché, commerces,
Bureau de poste et infrastructures sportives, dont un terrain de tennis.
💰 Prix du projet complet : 409 405 €
Pour obtenir davantage d'informations ou étudier votre projet de construction, contactez :
📞 François BUCHWALTER - 06 42 62 67 64
Maisons Brand Mulhouse vous accompagne dans chaque étape de votre futur projet immobilier.
Mentions légales
Terrain proposé par un partenaire foncier selon disponibilités et autorisation de publicité au prix de 134 505 €. Hors droit d'enregistrement et frais de notaire. Maison proposée, avec un contrat de construction de maison individuelle, dans le cadre de la loi du 19/12/1990, au prix de 274 900 € (Hors branchements et raccordements, papiers peints, peintures, revêtement de sol dans les chambres, qui sont chiffrés dans les travaux qui restent à charge du client. Tarif modifiable sans préavis). Étiquette énergie : A. Différents modèles disponibles pour ce terrain. Assurances et garanties du constructeur comprises (RC professionnelle, décennale, dommage ouvrage).Agence BRAND Maisons Individuelles de Mulhouse (68100)
- Téléphone :
- 03 89 41 28 88
- Adressse :
- 62 rue Jacques Mugnier
68100 Mulhouse, France
