Maison neuve à
Ohlungen
(67590) Référence :
CG2458969_1
Prix du projet : Maison avec Terrain
prix 334 400 €
- 4 pièces
- 3 chambres
- Surface maison 100 m2
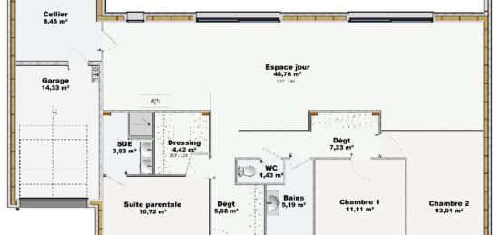
CONSTRUISEZ à Ohlungen une maison de 4 pièces (100 m²)
Idéalement située - Maison neuve 4 pièces modèle ELSA à Ohlungen (67590) avec 2 niveaux, une surface de 100 m² et de 463 m² de terrain. Son intérieur comporte trois chambres, une cuisine et une salle de bains, pièces entièrement personnalisables avec votre responsable de projet.
À dix minutes : gares, établissements scolaires, crèche, tennis, commerces et boulangerie. Allemagne à 25 km. Strasbourg à 28 km.
Investissement de la somme de 334 400 € hors frais de notaire et raccordements réseaux.
Prenez contact avec notre agence (Clément GUIGNARD) pour toute information sur la maison ou sur les modalités de vente. Maisons Brand Entzheim est là pour vous accompagner dans tous vos projets immobiliers.
Mentions légales
Terrain proposé par un partenaire foncier selon disponibilités et autorisation de publicité au prix de 111 500 €. Hors droit d'enregistrement et frais de notaire. Terrain + Maison proposés au prix de 334 400 € (Hors branchements et raccordements, papiers peints, peintures, revêtement de sol dans les chambres. Tarif modifiable sans préavis). Etiquette énergie : A. Différents modèles disponibles pour ce terrain. Assurances et garanties du constructeur (RC professionnelle, décennale, dommage ouvrage, garantie de remboursement de l'acompte, livraison à prix et délai convenu) : https://www.maisonsbrand.fr/informations-legales/.Agence BRAND Maisons Individuelles de Entzheim (67960)
- Téléphone :
- 03 89 41 28 88
- Adressse :
- 10 rue des Hérons
67960 Entzheim, France
