Maison neuve à
Ottmarsheim
(68490) Référence :
FB2281646_1
Prix du projet : Maison avec Terrain
prix 376 900 €
- 5 pièces
- 4 chambres
- Surface maison 113 m2
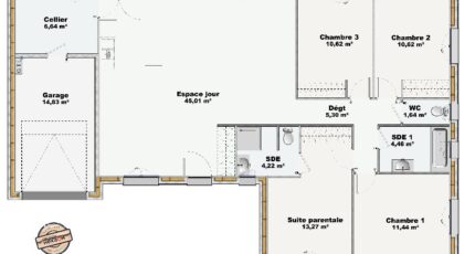
MAISON NEUVE 5 PIÈCES (113 m²) À VENDRE À OTTMARSHEIM
PROCHE DE MULHOUSE
À Ottmarsheim (68490), à seulement 13 km de Mulhouse et à proximité de la frontière allemande et suisse, découvrez cette maison neuve de plain-pied de 113 m² habitables sur un terrain de 834 m².
La maison se compose de :
4 chambres spacieuses,
une cuisine,
deux salles de bains modernes,
le tout de plain-pied, offrant confort et praticité au quotidien.
La commune dispose de nombreux services : établissements scolaires à quelques minutes à pied (collège Théodore Monod, école élémentaire K. et M. Krafft, crèche), bassin de natation, tennis, commerces de proximité, supérette, bureau de poste, épicerie et plusieurs boulangeries.
💰 Prix de vente : 376 900 €
Pour plus d'informations ou organiser une visite, contactez François BUCHWALTER (06-42-62-67-64).
Maisons Brand Mulhouse vous accompagne dans toutes les étapes de votre projet immobilier.
Mentions légales
Terrain proposé par un partenaire foncier selon disponibilités et autorisation de publicité au prix de 127 000 €. Hors droit d'enregistrement et frais de notaire. Maison proposée, avec un contrat de construction de maison individuelle, dans le cadre de la loi du 19/12/1990, au prix de 249 900 € (Hors branchements et raccordements, papiers peints, peintures, revêtement de sol dans les chambres, qui sont chiffrés dans les travaux qui restent à charge du client. Tarif modifiable sans préavis). Étiquette énergie : A. Différents modèles disponibles pour ce terrain. Assurances et garanties du constructeur comprises (RC professionnelle, décennale, dommage ouvrage).Agence BRAND Maisons Individuelles de Mulhouse (68100)
- Téléphone :
- 03 89 41 28 88
- Adressse :
- 62 rue Jacques Mugnier
68100 Mulhouse, France
