Maison neuve à
Raedersdorf
(68480) Référence :
FB2313504_1
Prix du projet : Maison avec Terrain
prix 363 240 €
- 4 pièces
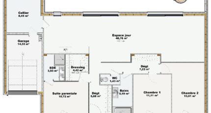
- 3 chambres
- Surface maison 120 m2
ENTE : Maison ossature bois T4 de 120 m² à Raedersdorf (68480)
EMPLACEMENT PRIVILÉGIÉ - MAISON CONTEMPORAINE ET ÉCORESPONSABLE
À seulement quelques kilomètres de la Suisse et de l'Allemagne, découvrez cette belle maison neuve de plain-pied en ossature bois, située dans un secteur prisé de Raedersdorf, au coeur du Sundgau.
D'une surface de 120 m² sur un terrain de 856 m², cette maison associe design moderne, performance énergétique et confort de vie.
Elle se compose de :
🛏️ 3 chambres spacieuses dont une suite parentale,
🍽️ Une cuisine ouverte sur un vaste séjour baigné de lumière,
🚿 Deux salles de bains au style contemporain,
🌿 Un jardin exposé plein sud, idéal pour profiter des beaux jours.
Construite en ossature bois, elle offre une excellente isolation, un confort thermique incomparable et un bilan énergétique exemplaire.
L'environnement est idéal : écoles, crèches, commerces, boulangeries, supermarché, équipements sportifs et marché local à proximité.
👉 Un lieu parfait pour concilier qualité de vie, respect de l'environnement et sérénité.
💰 Prix de vente : 363 240 €
📞 Contactez François BUCHWALTER au 06 42 62 67 64 pour plus d'informations ou pour étudier la faisabilité de votre projet.
Mentions légales
Terrain proposé par un partenaire foncier selon disponibilités et autorisation de publicité au prix de 93 340 €. Hors droit d'enregistrement et frais de notaire. Terrain + Maison proposés au prix de 269 900 € (Hors branchements et raccordements, papiers peints, peintures, revêtement de sol dans les chambres. Tarif modifiable sans préavis). Etiquette énergie : A. Différents modèles disponibles pour ce terrain. Assurances et garanties du constructeur (RC professionnelle, décennale, dommage ouvrage, garantie de remboursement de l'acompte, livraison à prix et délai convenu) : https://www.maisonsbrand.fr/informations-legales/.Agence BRAND Maisons Individuelles de Mulhouse (68100)
- Téléphone :
- 03 89 41 28 88
- Adressse :
- 62 rue Jacques Mugnier
68100 Mulhouse, France
