Maison neuve à
Reiningue
(68950) Référence :
HB2247203_1
Prix du projet : Maison avec Terrain
prix 364 472 €
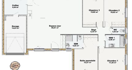
- 5 pièces
- 4 chambres
- Surface maison 113 m2
☀️ LUMI 113 - L'espace, la lumière, et la nature comme alliée
LUMI, c'est une maison ossature bois de 113 m², pensée pour vous offrir un confort lumineux et éco-responsable au quotidien.
🌟 Ce qui rend LUMI unique :
✔️ 4 chambres, dont une suite parentale
✔️ 45 m² de pièce de vie ouverte sur l'extérieur
✔️ Cuisine moderne et conviviale
✔️ Garage avec cellier
✔️ Matériaux biosourcés et confort thermique optimal
🌳 Et toujours, un bois issu de forêts gérées durablement, pour une maison respectueuse de l'environnement et de votre santé.
📞 Hervé Bachmann - 06 79 68 71 53
Le bonheur, c'est simple comme Maisons Brand.
Et si votre bonheur commençait ici ?
Mentions légales
Terrain proposé par un partenaire foncier selon disponibilités et autorisation de publicité au prix de 106 900 €. Hors droit d'enregistrement et frais de notaire. Maison proposée, avec un contrat de construction de maison individuelle, dans le cadre de la loi du 19/12/1990, au prix de 257 572 € (Hors branchements et raccordements, papiers peints, peintures, revêtement de sol dans les chambres, qui sont chiffrés dans les travaux qui restent à charge du client. Tarif modifiable sans préavis). Étiquette énergie : A. Différents modèles disponibles pour ce terrain. Assurances et garanties du constructeur comprises (RC professionnelle, décennale, dommage ouvrage).Agence BRAND Maisons Individuelles de Colmar (68000)
- Téléphone :
- 03 89 41 28 88
- Adressse :
- 65 rue de la Semm
68000 Colmar, France
