Maison neuve à
Reiningue
(68950) Référence :
HB2371187_6
Prix du projet : Maison avec Terrain
prix 418 547 €
- 4 pièces
- 4 chambres
- Surface maison 100 m2
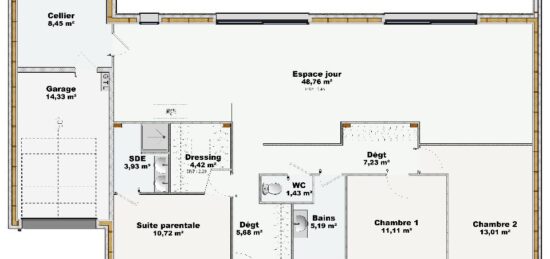
Maison de 4 pièces (100 m²) en vente à Reiningue
MAISON 4 PIÈCES NEUVE - PROCHE DE MULHOUSE
À vendre : localisée proche du Suisse et de l'Allemagne et à 8 km de Mulhouse, découvrez cette maison de 4 pièces de 100 m² et de 663 m² de terrain à Reiningue (68950). Son intérieur est composé de quatre chambres, d'une cuisine et de deux salles de bains.
Cette maison comporte 2 niveaux. Elle est neuve.
Il y a des établissements scolaires (de la maternelle au lycée) à moins de 10 minutes en voiture, 17 crèches à moins de 10 minutes à pied, tout comme l'université Université de Haute-Alsace pour le supérieur. Niveau transports, on trouve 16 gares à moins de 10 minutes en voiture. Il y a des tennis, des bibliothèques, des bassins de natation, des boulangeries, des commerces, des supermarchés, des bureaux de poste et des supérettes à proximité. 3 marchés animent le quartier.
Elle est proposée à l'achat pour 418 547 €.
Contactez Hervé BACHMANN (06-79-68-71-53) pour toute question sur la maison.
Mentions légales
Terrain proposé par un partenaire foncier selon disponibilités et autorisation de publicité au prix de 149 900 €. Hors droit d'enregistrement et frais de notaire. Terrain + Maison proposés au prix de 268 647 € (Hors branchements et raccordements, papiers peints, peintures, revêtement de sol dans les chambres. Tarif modifiable sans préavis). Etiquette énergie : A. Différents modèles disponibles pour ce terrain. Assurances et garanties du constructeur (RC professionnelle, décennale, dommage ouvrage, garantie de remboursement de l'acompte, livraison à prix et délai convenu) : https://www.maisonsbrand.fr/informations-legales/.Agence BRAND Maisons Individuelles de Colmar (68000)
- Téléphone :
- 03 89 41 28 88
- Adressse :
- 65 rue de la Semm
68000 Colmar, France
