Maison neuve à
Russ
(67130) Référence :
PE2259660_2
Prix du projet : Maison avec Terrain
prix 412 000 €
- 4 pièces
- 3 chambres
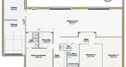
- Surface maison 120 m2
VENTE : maison de 4 pièces (120 m²) à Russ
IDÉALEMENT SITUÉE - MAISON 4 PIÈCES NEUVE
En vente : Maisons Brand Entzheim vous présente cette maison de 4 pièces de plain-pied de 120 m², idéalement située dans Russ (67130). Conçue de plain-pied, elle dispose de trois chambres, d'une cuisine et de deux salles de bains.
Le terrain de cette maison s'étend sur 900 m².
La maison est neuve.
La maison se situe dans un quartier prisé. On y trouve une école primaire. Niveau transports, il y a la gare Russ Hersbach à moins de 10 minutes à pied. On trouve un tennis, une boulangerie, deux supermarchés et un commerce dans les environs.
Elle est proposée à l'achat pour 412 000 €.
Prenez contact avec Patrick EPP (tél : 06-80-48-25-78) pour tout renseignement sur la maison, sur les modalités de vente ou sur les démarches à suivre.
Mentions légales
Terrain proposé par un partenaire foncier selon disponibilités et autorisation de publicité au prix de 112 800 €. Hors droit d'enregistrement et frais de notaire. Maison proposée, avec un contrat de construction de maison individuelle, dans le cadre de la loi du 19/12/1990, au prix de 299 200 € (Hors branchements et raccordements, papiers peints, peintures, revêtement de sol dans les chambres, qui sont chiffrés dans les travaux qui restent à charge du client. Tarif modifiable sans préavis). Étiquette énergie : A. Différents modèles disponibles pour ce terrain. Assurances et garanties du constructeur comprises (RC professionnelle, décennale, dommage ouvrage).Agence BRAND Maisons Individuelles de Entzheim (67960)
- Téléphone :
- 03 89 41 28 88
- Adressse :
- 10 rue des Hérons
67960 Entzheim, France
