Maison neuve à
Russ
(67130) Référence :
PE2287708_2
Prix du projet : Maison avec Terrain
prix 373 500 €
- 4 pièces
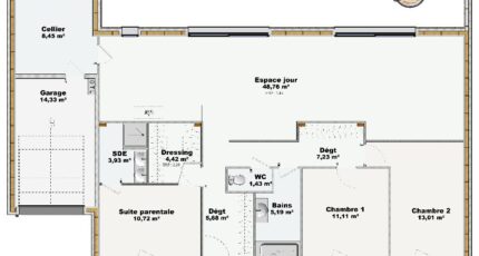
- 3 chambres
- Surface maison 120 m2
Maison T4 (120 m²) en vente à Russ
EMPLACEMENT PRIVILÉGIÉ - MAISON 4 PIÈCES NEUVE
Nous sommes ravis de vous proposer à vendre, bénéficiant d'un emplacement d'exception dans Russ (67130), cette maison de 4 pièces de plain-pied de 120 m². Son intérieur inclut trois chambres, une cuisine et deux salles de bains.
Le terrain du bien s'étend sur 1 904 m².
Cette maison est neuve.
La maison se situe dans un secteur prisé. Une école primaire y est implantée. Niveau transports en commun, il y a la gare Russ Hersbach à moins de 10 minutes à pied. On trouve un tennis, une boulangerie, deux supermarchés et un commerce dans les environs.
Son prix de vente est de 373 500 €.
N'hésitez pas à prendre contact avec notre agence (Patrick EPP : 06-80-48-25-78) pour toute question sur la maison.
Mentions légales
Terrain proposé par un partenaire foncier selon disponibilités et autorisation de publicité au prix de 80 000 €. Hors droit d'enregistrement et frais de notaire. Terrain + Maison proposés au prix de 293 500 € (Hors branchements et raccordements, papiers peints, peintures, revêtement de sol dans les chambres. Tarif modifiable sans préavis). Etiquette énergie : A. Différents modèles disponibles pour ce terrain. Assurances et garanties du constructeur (RC professionnelle, décennale, dommage ouvrage, garantie de remboursement de l'acompte, livraison à prix et délai convenu) : https://www.maisonsbrand.fr/informations-legales/.Agence BRAND Maisons Individuelles de Entzheim (67960)
- Téléphone :
- 03 89 41 28 88
- Adressse :
- 10 rue des Hérons
67960 Entzheim, France
