Maison neuve à
Russ
(67130) Référence :
PE2399928_3
Prix du projet : Maison avec Terrain
prix 355 000 €
- 5 pièces
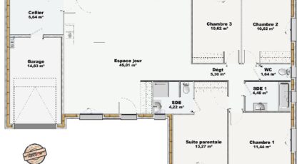
- 4 chambres
- Surface maison 113 m2
VENTE d'une maison de 5 pièces (113 m²) à Russ
EMPLACEMENT PRIVILÉGIÉ - MAISON 5 PIÈCES NEUVE
À vendre : nous sommes ravis de vous proposer cette maison de 5 pièces de plain-pied de 113 m² et de 1 904 m² de terrain bénéficiant d'un emplacement d'exception dans Russ (67130).
Elle inclut quatre chambres, une cuisine et deux salles de bains. La maison est neuve.
Cette maison est située dans un secteur prisé. On y trouve une école primaire. Niveau transports en commun, on trouve la gare Russ Hersbach à moins de 10 minutes à pied. Il y a un tennis, une boulangerie, deux supermarchés et un commerce à proximité de la maison.
Elle est à vendre pour la somme de 355 000 €.
Contactez Patrick EPP (tél : 06-80-48-25-78) pour obtenir de plus amples renseignements sur la maison. Maisons Brand Entzheim vous accompagne dans tous vos projets immobiliers et dans toutes vos démarches.
Mentions légales
Terrain proposé par un partenaire foncier selon disponibilités et autorisation de publicité au prix de 80 000 €. Hors droit d'enregistrement et frais de notaire. Terrain + Maison proposés au prix de 275 000 € (Hors branchements et raccordements, papiers peints, peintures, revêtement de sol dans les chambres. Tarif modifiable sans préavis). Etiquette énergie : A. Différents modèles disponibles pour ce terrain. Assurances et garanties du constructeur (RC professionnelle, décennale, dommage ouvrage, garantie de remboursement de l'acompte, livraison à prix et délai convenu) : https://www.maisonsbrand.fr/informations-legales/.Agence BRAND Maisons Individuelles de Entzheim (67960)
- Téléphone :
- 03 89 41 28 88
- Adressse :
- 10 rue des Hérons
67960 Entzheim, France
