Maison neuve à
Saulxures
(67420) Référence :
PE2437288_1
Prix du projet : Maison avec Terrain
prix 280 000 €
- 4 pièces
- 3 chambres
- Surface maison 100 m2
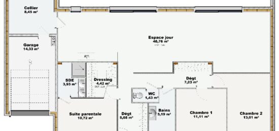
VENTE d'une maison T4 (100 m²) à Saulxures
IDÉALEMENT SITUÉE - MAISON 4 PIÈCES NEUVE
À vendre : nous vous présentons cette maison de 4 pièces de 100 m² idéalement située dans Saulxures (67420). Elle compte trois chambres, une cuisine et une salle de bains.
Le terrain de la propriété est de 2 000 m².
Cette maison comporte 2 niveaux. Elle est neuve.
La maison se situe dans un secteur prisé. Une école primaire y est implantée. Côté transports, il y a cinq gares à moins de 10 minutes en voiture. Les nationales N159 et N59 sont accessibles à moins de 16 km.
Elle est à vendre pour la somme de 280 000 €.
N'hésitez pas à prendre contact avec Patrick EPP (tél : 06-80-48-25-78) pour toute information sur la maison. Maisons Brand Entzheim est là pour vous accompagner dans tous vos projets immobiliers.
Mentions légales
Terrain proposé par un partenaire foncier selon disponibilités et autorisation de publicité au prix de 45 000 €. Hors droit d'enregistrement et frais de notaire. Terrain + Maison proposés au prix de 280 000 € (Hors branchements et raccordements, papiers peints, peintures, revêtement de sol dans les chambres. Tarif modifiable sans préavis). Etiquette énergie : A. Différents modèles disponibles pour ce terrain. Assurances et garanties du constructeur (RC professionnelle, décennale, dommage ouvrage, garantie de remboursement de l'acompte, livraison à prix et délai convenu) : https://www.maisonsbrand.fr/informations-legales/.Agence BRAND Maisons Individuelles de Entzheim (67960)
- Téléphone :
- 03 89 41 28 88
- Adressse :
- 10 rue des Hérons
67960 Entzheim, France
