Maison neuve à
Schwobsheim
(67390) Référence :
BJ2312043_4
Prix du projet : Maison avec Terrain
prix 251 400 €
- 4 pièces
- 3 chambres
- Surface maison 75 m2
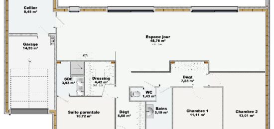
VENTE d'une maison de 4 pièces (75 m²) à Schwobsheim
MAISON 4 PIÈCES NEUVE - PROCHE DE COLMAR
À moins de 8 km de l'Allemagne et à quelques kilomètres de Colmar, nous vous présentons en vente à Schwobsheim (67390), cette maison de 4 pièces de plain-pied de 75 m². Elle offre trois chambres, une cuisine et une salle de bains.
Le terrain de la propriété s'étend sur 346 m².
Cette maison est neuve.
Il y a une école primaire dans le quartier.
Son prix de vente est de 251 400 €.
Contactez notre agence (JOLION Bruno : 06-09-15-30-79) pour obtenir de plus amples informations sur la maison. Maisons Brand est là pour vous accompagner dans toutes vos démarches.
Frais de notaire et branchements inclus.
Mentions légales
Terrain proposé par un partenaire foncier selon disponibilités et autorisation de publicité au prix de 65 740 €. Hors droit d'enregistrement et frais de notaire. Maison proposée, avec un contrat de construction de maison individuelle, dans le cadre de la loi du 19/12/1990, au prix de 185 660 € (Hors branchements et raccordements, papiers peints, peintures, revêtement de sol dans les chambres, qui sont chiffrés dans les travaux qui restent à charge du client. Tarif modifiable sans préavis). Étiquette énergie : A. Différents modèles disponibles pour ce terrain. Assurances et garanties du constructeur comprises (RC professionnelle, décennale, dommage ouvrage).Agence BRAND Maisons Individuelles de Entzheim (67960)
- Téléphone :
- 03 89 41 28 88
- Adressse :
- 10 rue des Hérons
67960 Entzheim, France
