Maison neuve à
Schwobsheim
(67390) Référence :
BJ2312108_1
Prix du projet : Maison avec Terrain
prix 355 500 €
- 5 pièces
- 4 chambres
- Surface maison 113 m2
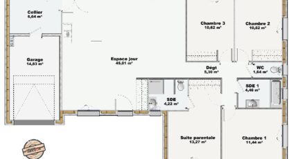
VENTE : maison de 5 pièces (113 m²) à Schwobsheim
MAISON 5 PIÈCES NEUVE - PROCHE DE COLMAR
À vendre à moins de 8 km de l'Allemagne et à quelques kilomètres de Colmar, à Schwobsheim (67390), notre agence Maisons Brand est ravie de vous présenter cette maison de 5 pièces de plain-pied de 113 m² et de 607 m² de terrain.
Elle compte quatre chambres, une cuisine et deux salles de bains. Cette maison est neuve.
Une école primaire est implantée dans le quartier.
Son prix de vente est de 355 500 €.
Contactez notre constructeur (JOLION Bruno : 06-09-15-30-79) pour plus de renseignements sur la maison, sur les démarches à suivre ou sur les modalités de vente. Maisons Brand est là pour vous accompagner dans tous vos projets immobiliers.
Frais de notaire et branchements inclus.
Mentions légales
Terrain proposé par un partenaire foncier selon disponibilités et autorisation de publicité au prix de 97 120 €. Hors droit d'enregistrement et frais de notaire. Maison proposée, avec un contrat de construction de maison individuelle, dans le cadre de la loi du 19/12/1990, au prix de 258 380 € (Hors branchements et raccordements, papiers peints, peintures, revêtement de sol dans les chambres, qui sont chiffrés dans les travaux qui restent à charge du client. Tarif modifiable sans préavis). Étiquette énergie : A. Différents modèles disponibles pour ce terrain. Assurances et garanties du constructeur comprises (RC professionnelle, décennale, dommage ouvrage).Agence BRAND Maisons Individuelles de Entzheim (67960)
- Téléphone :
- 03 89 41 28 88
- Adressse :
- 10 rue des Hérons
67960 Entzheim, France
