Maison neuve à
Schwobsheim
(67390) Référence :
BJ2312108_10
Prix du projet : Maison avec Terrain
prix 375 500 €
- 4 pièces
- 3 chambres
- Surface maison 120 m2
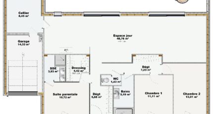
Maison F4 (120 m²) à vendre à Schwobsheim
PROCHE DE COLMAR - MAISON 4 PIÈCES NEUVE
À vendre : localisée à quelques kilomètres de l'Allemagne et à 19 km de Colmar, Maisons Brand vous présente à Schwobsheim (67390), cette maison de 4 pièces de plain-pied de 120 m² et de 607 m² de terrain.
Son intérieur compte trois chambres, une cuisine et deux salles de bains. La maison est neuve.
Une école primaire est implantée dans le quartier.
Elle est à vendre pour la somme de 375 500 €.
Prenez contact avec notre agence (Bruno JOLION : 06-09-15-30-79) pour toute information sur cette maison ou sur les démarches à suivre. Donnez vie à vos projets immobiliers avec Maisons Brand.
Frais de notaire et branchements inclus.
Mentions légales
Terrain proposé par un partenaire foncier selon disponibilités et autorisation de publicité au prix de 97 120 €. Hors droit d'enregistrement et frais de notaire. Terrain + Maison proposés au prix de 278 380 € (Hors branchements et raccordements, papiers peints, peintures, revêtement de sol dans les chambres. Tarif modifiable sans préavis). Etiquette énergie : A. Différents modèles disponibles pour ce terrain. Assurances et garanties du constructeur (RC professionnelle, décennale, dommage ouvrage, garantie de remboursement de l'acompte, livraison à prix et délai convenu) : https://www.maisonsbrand.fr/informations-legales/.Agence BRAND Maisons Individuelles de Entzheim (67960)
- Téléphone :
- 03 89 41 28 88
- Adressse :
- 10 rue des Hérons
67960 Entzheim, France
