Maison neuve à
Sickert (68290) Référence : FB2321128_1

Prix du projet : Maison avec Terrain

prix 339 900 €

  • 5 pièces
  • 4 chambres
  • Surface maison 113 m2

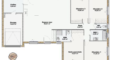
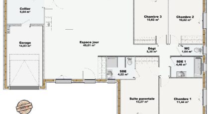
VENTE : Maison neuve de 5 pièces (113 m²) à Sickert
🌿 EMPLACEMENT PRIVILÉGIÉ - VUE MONTAGNE - MAISON OSSATURE BOIS

À Sickert (68290), à seulement 31 km de la frontière suisse et à proximité de Mulhouse, découvrez cette superbe maison neuve de plain-pied de 113 m², implantée sur un terrain de 1 000 m².

Construite en ossature bois, elle allie performance énergétique, confort moderne et esthétique naturelle.
Elle se compose d'un espace de vie lumineux ouvert sur le jardin, de quatre chambres spacieuses, d'une cuisine fonctionnelle et de deux salles de bains.

Exposée plein sud, la maison bénéficie d'une vue dégagée sur les montagnes, offrant un cadre de vie paisible et verdoyant.
L'environnement est familial et recherché, avec écoles maternelle et primaire accessibles à pied.
L'autoroute A36 se trouve à seulement 12 km, facilitant vos déplacements.

💰 Prix de vente : 339 900 €

Pour tout renseignement ou pour planifier une visite, contactez :
📞 François BUCHWALTER - 06 42 62 67 64

Mentions légales

Terrain proposé par un partenaire foncier selon disponibilités et autorisation de publicité au prix de 90 000 €. Hors droit d'enregistrement et frais de notaire. Maison proposée, avec un contrat de construction de maison individuelle, dans le cadre de la loi du 19/12/1990, au prix de 249 900 € (Hors branchements et raccordements, papiers peints, peintures, revêtement de sol dans les chambres, qui sont chiffrés dans les travaux qui restent à charge du client. Tarif modifiable sans préavis). Étiquette énergie : A. Différents modèles disponibles pour ce terrain. Assurances et garanties du constructeur comprises (RC professionnelle, décennale, dommage ouvrage).

Contactez l'agence de Mulhouse

03 89 41 28 88

    * Champs obligatoires

    Vos informations sont traitées par HEXAOM et transmises à un conseiller commercial qui vous contactera afin de répondre à votre demande. Les plans et images présentés sur notre site sont la propriété d’HEXAOM et ne peuvent pas être reproduits sans son accord. Pour retrouver notre politique de protection des données personnelles et exercer vos droits conformément à la « loi informatique et liberté » cliquez-ici.