Maison neuve à
Soultzmatt
(68570) Référence :
HB2434046_2
Prix du projet : Maison avec Terrain
prix 419 533 €
- 4 pièces
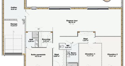
- 3 chambres
- Surface maison 120 m2
MAISON OSSATURE BOIS
Modèle LOFT
Bienvenue dans le modèle LOFT, une maison pensée pour vous offrir un cadre de vie chaleureux, pratique et résolument moderne.
Dès les premiers pas, on découvre un espace de vie de plus de 48 m², lumineux et spacieux. Le salon-séjour s'ouvre largement sur l'extérieur grâce à de grandes baies vitrées, tandis que la cuisine ouverte, astucieusement intégrée, invite à la convivialité.
Avec ses 120 m² de surface au sol, ce modèle à ossature bois vous offre une maison généreuse et bien agencée, idéale pour une vie de famille épanouie.
- 3 chambres confortables dont une suite parentale avec dressing et salle d'eau, pensées pour le repos et l'intimité
- Une salle de bains confortable
- Un WC indépendant
- Un garage intégré avec cellier, pour plus de praticité au quotidien
Et parce que vos envies méritent d'être réalisées, nous vous proposons un pack d'options personnalisables : tout est prévu pour que votre maison vous ressemble.
Vous rêvez d'une maison à la fois moderne, fonctionnelle et accueillante ?
Le modèle LOFT vous attend.
Maison en PAD BRANCHEMENTS ET FRAIS DE NOTAIRE INCLUS
📞 Contactez Hervé BACHMANN dès maintenant pour en savoir plus, et venez découvrir cette maison qui conjugue design et qualité de vie.
Le bonheur c'est simple comme Maisons Brand !
Mentions légales
Terrain proposé par un partenaire foncier selon disponibilités et autorisation de publicité au prix de 133 920 €. Hors droit d'enregistrement et frais de notaire. Terrain + Maison proposés au prix de 419 533 € (Hors branchements et raccordements, papiers peints, peintures, revêtement de sol dans les chambres. Tarif modifiable sans préavis). Etiquette énergie : A. Différents modèles disponibles pour ce terrain. Assurances et garanties du constructeur (RC professionnelle, décennale, dommage ouvrage, garantie de remboursement de l'acompte, livraison à prix et délai convenu) : https://www.maisonsbrand.fr/informations-legales/.Agence BRAND Maisons Individuelles de Colmar (68000)
- Téléphone :
- 03 89 41 28 88
- Adressse :
- 65 rue de la Semm
68000 Colmar, France
