Maison neuve à
Spechbach-le-Bas
(68720) Référence :
FB2305498_2
Prix du projet : Maison avec Terrain
prix 347 945 €
- 5 pièces
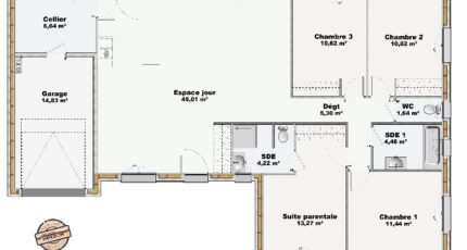
- 4 chambres
- Surface maison 113 m2
Maison neuve de 5 pièces (113 m²) à Spechbach-le-Bas (68720)
🏡 Plain-pied - Vue dégagée - Emplacement privilégié - Terrain de 557 m²
À Spechbach-le-Bas, à quelques minutes de Mulhouse, de la Suisse et de l'Allemagne, découvrez cette maison neuve de plain-pied de 113 m², construite sur un terrain de 557 m² dans un secteur calme et recherché.
👉 Ses atouts :
4 chambres spacieuses
Grande pièce de vie avec cuisine ouverte
2 salles de bains modernes
Terrain orienté plein sud, offrant une vue dégagée et un cadre agréable
Accès rapide à l'autoroute A36 (19 km)
Commerces et épicerie à proximité immédiate
💰 Prix de vente : 347 945 €
📞 Contact : François BUCHWALTER
📱 06 42 62 67 64
Mentions légales
Terrain proposé par un partenaire foncier selon disponibilités et autorisation de publicité au prix de 98 045 €. Hors droit d'enregistrement et frais de notaire. Maison proposée, avec un contrat de construction de maison individuelle, dans le cadre de la loi du 19/12/1990, au prix de 249 900 € (Hors branchements et raccordements, papiers peints, peintures, revêtement de sol dans les chambres, qui sont chiffrés dans les travaux qui restent à charge du client. Tarif modifiable sans préavis). Étiquette énergie : A. Différents modèles disponibles pour ce terrain. Assurances et garanties du constructeur comprises (RC professionnelle, décennale, dommage ouvrage).Agence BRAND Maisons Individuelles de Mulhouse (68100)
- Téléphone :
- 03 89 41 28 88
- Adressse :
- 62 rue Jacques Mugnier
68100 Mulhouse, France
