Maison neuve à
Sundhoffen
(68280) Référence :
BJ2418036_2
Prix du projet : Maison avec Terrain
prix 475 900 €
- 4 pièces
- 3 chambres
- Surface maison 101 m2
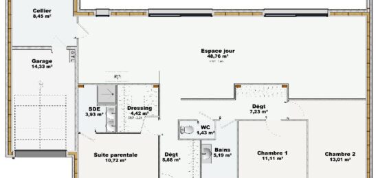
Maison de 4 pièces (101 m²) en vente à Sundhoffen
MAISON 4 PIÈCES NEUVE - PROCHE DE COLMAR
En vente : à moins de 15 km de l'Allemagne et à deux pas de Colmar, à Sundhoffen (68280), Maisons Brand Entzheim vous présente cette maison de 4 pièces de 101 m² et de 567 m² de terrain. Elle est composée de trois chambres, d'une cuisine et d'une salle de bains.
Cette maison comporte 2 niveaux. Elle est neuve.
On trouve des écoles maternelles et élémentaires dans la commune. Niveau transports, il y a cinq gares à moins de 10 minutes en voiture. On trouve une boulangerie à proximité.
Elle est proposée à l'achat pour 475 900 €.
Contactez Bruno JOLION (tél : 06-09-15-30-79) pour obtenir de plus amples renseignements sur cette maison ou sur les modalités de vente. Maisons Brand est là pour vous accompagner dans toutes vos démarches.
Frais de notaire et branchements inclus.
Mentions légales
Terrain proposé par un partenaire foncier selon disponibilités et autorisation de publicité au prix de 170 000 €. Hors droit d'enregistrement et frais de notaire. Terrain + Maison proposés au prix de 305 900 € (Hors branchements et raccordements, papiers peints, peintures, revêtement de sol dans les chambres. Tarif modifiable sans préavis). Etiquette énergie : A. Différents modèles disponibles pour ce terrain. Assurances et garanties du constructeur (RC professionnelle, décennale, dommage ouvrage, garantie de remboursement de l'acompte, livraison à prix et délai convenu) : https://www.maisonsbrand.fr/informations-legales/.Agence BRAND Maisons Individuelles de Entzheim (67960)
- Téléphone :
- 03 89 41 28 88
- Adressse :
- 10 rue des Hérons
67960 Entzheim, France
