Maison neuve à
Sundhoffen
(68280) Référence :
BJ2418036_5
Prix du projet : Maison avec Terrain
prix 445 600 €
- 4 pièces
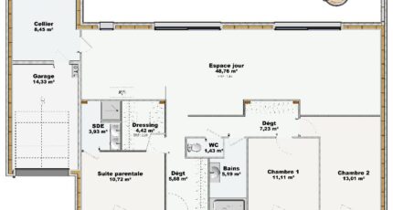
- 3 chambres
- Surface maison 120 m2
VENTE d'une maison F4 à ossature bois (120 m²) à Sundhoffen
MAISON 4 PIÈCES NEUVE - PROCHE DE COLMAR
En vente : située proche de l'Allemagne et à 8 km de Colmar, nous vous présentons cette maison de 4 pièces de plain-pied de 120 m² à Sundhoffen (68280).
Elle dispose de trois chambres, d'une cuisine et de deux salles de bains. La maison est neuve.
Le terrain de la propriété est de 567 m².
On trouve des écoles maternelles et élémentaires dans la commune. Côté transports, il y a cinq gares à moins de 10 minutes en voiture. On trouve une boulangerie à proximité.
Elle est à vendre pour la somme de 445 600 €.
Contactez notre agence (Bruno JOLION : 06-09-15-30-79) pour toute question sur cette maison ou sur les démarches à suivre.
Frais de notaire et branchements inclus.
Mentions légales
Terrain proposé par un partenaire foncier selon disponibilités et autorisation de publicité au prix de 170 000 €. Hors droit d'enregistrement et frais de notaire. Terrain + Maison proposés au prix de 275 600 € (Hors branchements et raccordements, papiers peints, peintures, revêtement de sol dans les chambres. Tarif modifiable sans préavis). Etiquette énergie : A. Différents modèles disponibles pour ce terrain. Assurances et garanties du constructeur (RC professionnelle, décennale, dommage ouvrage, garantie de remboursement de l'acompte, livraison à prix et délai convenu) : https://www.maisonsbrand.fr/informations-legales/.Agence BRAND Maisons Individuelles de Entzheim (67960)
- Téléphone :
- 03 89 41 28 88
- Adressse :
- 10 rue des Hérons
67960 Entzheim, France
