Maison neuve à
Westhalten
(68250) Référence :
HB2369162_2
Prix du projet : Maison avec Terrain
prix 421 000 €
- 5 pièces
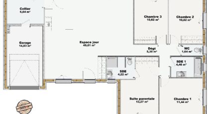
- 4 chambres
- Surface maison 113 m2
☀️ LUMI 113 - L'espace, la lumière, et la nature comme alliée
LUMI, c'est une maison ossature bois de 113 m², pensée pour vous offrir un confort lumineux et éco-responsable au quotidien.
🌟 Ce qui rend LUMI unique :
✔️ 4 chambres, dont une suite parentale
✔️ 45 m² de pièce de vie ouverte sur l'extérieur
✔️ Cuisine moderne et conviviale
✔️ Garage avec cellier
✔️ Matériaux biosourcés et confort thermique optimal
🌳 Et toujours, un bois issu de forêts gérées durablement, pour une maison respectueuse de l'environnement et de votre santé.
Frais de notaire et branchements inclus
📞 Hervé Bachmann - 06 79 68 71 53 -
Le bonheur, c'est simple comme Maisons Brand.
Et si votre bonheur commençait ici ?
Mentions légales
Terrain proposé par un partenaire foncier selon disponibilités et autorisation de publicité au prix de 150 000 €. Hors droit d'enregistrement et frais de notaire. Terrain + Maison proposés au prix de 271 000 € (Hors branchements et raccordements, papiers peints, peintures, revêtement de sol dans les chambres. Tarif modifiable sans préavis). Etiquette énergie : A. Différents modèles disponibles pour ce terrain. Assurances et garanties du constructeur (RC professionnelle, décennale, dommage ouvrage, garantie de remboursement de l'acompte, livraison à prix et délai convenu) : https://www.maisonsbrand.fr/informations-legales/.Agence BRAND Maisons Individuelles de Colmar (68000)
- Téléphone :
- 03 89 41 28 88
- Adressse :
- 65 rue de la Semm
68000 Colmar, France
