Maison neuve à
Wintzenheim
(68920) Référence :
HB2336108_2
Prix du projet : Maison avec Terrain
prix 389 217 €
- 5 pièces
- 4 chambres
- Surface maison 113 m2
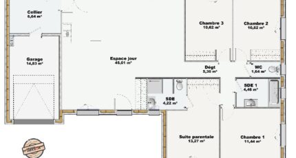
Bienvenue dans le modèle LUMI, une maison contemporaine pensée pour répondre aux besoins d'aujourd'hui, entre esthétique moderne et fonctionnalité quotidienne.
Dès l'entrée, vous serez séduit par un espace de vie de 45 m², baigné de lumière grâce à de larges ouvertures sur l'extérieur. Le salon-séjour, spacieux et convivial, est prolongé grâce à la cuisine ouverte, parfaitement intégrée pour favoriser les moments de partage en famille ou entre amis.
Avec ses 113 m² de surface au sol, cette maison à ossature bois vous offre des volumes généreux et bien équilibrés pour une vie de famille épanouie.
- 4 chambres confortables, dont une suite parentale avec espace placard et salle d'eau privative avec WC
Une salle de bains familiale
Un WC indépendant
Un garage intégré avec cellier, idéal pour le rangement et la fonctionnalité
Et parce que chaque famille a des besoins spécifiques, nous vous proposons un pack d'options personnalisables. Vous imaginez, nous concrétisons.
Vous rêvez d'un chez-vous spacieux, lumineux, chaleureux et résolument moderne ?
Le modèle LUMI vous attend.
📞 Contactez Hervé BACHMANN (06 79 68 71 53) pour plus d'informations et venez découvrir une maison qui conjugue style, confort et qualité.
Le bonheur, c'est simple comme Maisons Brand.
Mentions légales
Terrain proposé par un partenaire foncier selon disponibilités et autorisation de publicité au prix de 121 220 €. Hors droit d'enregistrement et frais de notaire. Maison proposée, avec un contrat de construction de maison individuelle, dans le cadre de la loi du 19/12/1990, au prix de 267 997 € (Hors branchements et raccordements, papiers peints, peintures, revêtement de sol dans les chambres, qui sont chiffrés dans les travaux qui restent à charge du client. Tarif modifiable sans préavis). Étiquette énergie : A. Différents modèles disponibles pour ce terrain. Assurances et garanties du constructeur comprises (RC professionnelle, décennale, dommage ouvrage).Agence BRAND Maisons Individuelles de Colmar (68000)
- Téléphone :
- 03 89 41 28 88
- Adressse :
- 65 rue de la Semm
68000 Colmar, France
