Maison neuve à
Wittelsheim
(68310) Référence :
FB2417750_2
Prix du projet : Maison avec Terrain
prix 376 179 €
- 5 pièces
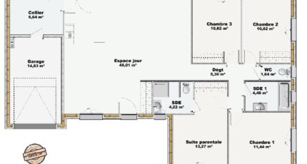
- 4 chambres
- Surface maison 113 m2
VENTE - Maison ossature bois 5 pièces de 113 m² à Wittelsheim (68310)
Emplacement privilégié - Maison neuve de plain-pied
À Wittelsheim, dans un secteur résidentiel recherché, à proximité immédiate de Mulhouse, de l'Allemagne et de la Suisse, Maisons Brand Mulhouse vous propose cette maison neuve de plain-pied à ossature bois, conçue pour offrir confort, performance énergétique et qualité de vie durable.
D'une surface habitable de 113 m², cette maison est implantée sur un terrain de 444 m² et est réalisée selon les dernières normes thermiques en vigueur, garantissant une excellente isolation et des consommations énergétiques optimisées.
Elle se compose de :
Quatre chambres, idéales pour une famille
Une pièce de vie spacieuse et lumineuse avec cuisine ouverte
Deux salles de bains, pour un confort au quotidien
Une distribution intérieure fonctionnelle et personnalisable
Située dans un environnement attractif et pratique, la maison bénéficie de la proximité immédiate de nombreux services :
Écoles maternelles, primaires, collège et lycée accessibles à moins de 10 minutes à pied
Commerces et services de proximité : supermarché, bibliothèque, boulangeries, boucheries-charcuteries, bureau de poste
Marché hebdomadaire Place de Gaulle chaque jeudi matin
💰 Prix de vente : 376 179 € (maison + terrain)
📞 Pour plus d'informations, une étude personnalisée de votre projet ou les modalités de vente, contactez :
François BUCHWALTER - 06 42 62 67 64
Mentions légales
Terrain proposé par un partenaire foncier selon disponibilités et autorisation de publicité au prix de 104 782 €. Hors droit d'enregistrement et frais de notaire. Terrain + Maison proposés au prix de 376 179 € (Hors branchements et raccordements, papiers peints, peintures, revêtement de sol dans les chambres. Tarif modifiable sans préavis). Etiquette énergie : A. Différents modèles disponibles pour ce terrain. Assurances et garanties du constructeur (RC professionnelle, décennale, dommage ouvrage, garantie de remboursement de l'acompte, livraison à prix et délai convenu) : https://www.maisonsbrand.fr/informations-legales/.Agence BRAND Maisons Individuelles de Mulhouse (68100)
- Téléphone :
- 03 89 41 28 88
- Adressse :
- 62 rue Jacques Mugnier
68100 Mulhouse, France
