Maison neuve à
Wittisheim
(67820) Référence :
VM2466070_4
Prix du projet : Maison avec Terrain
prix 410 000 €
- 5 pièces
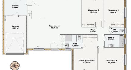
- 4 chambres
- Surface maison 113 m2
Construisez votre Maison Brand à WITTISHEIM !
Je vous propose ce beau terrain situé à Wittisheim, dans un environnement calme et agréable.
Idéal pour la construction de votre future maison.
Petits commerces et école, cette commune à tout pour séduire les familles en recherche de cadre verdoyant.
Ce modèle à ossature bois, est possibilité parmi tant d'autres, contactez moi pour plus de renseignements, je vous accompagne dans votre projet de vie.
Le Bonheur c'est simple comme Maisons Brand !
Mentions légales
Terrain proposé par un partenaire foncier selon disponibilités et autorisation de publicité au prix de 103 000 €. Hors droit d'enregistrement et frais de notaire. Terrain + Maison proposés au prix de 410 000 € (Hors branchements et raccordements, papiers peints, peintures, revêtement de sol dans les chambres. Tarif modifiable sans préavis). Etiquette énergie : A. Différents modèles disponibles pour ce terrain. Assurances et garanties du constructeur (RC professionnelle, décennale, dommage ouvrage, garantie de remboursement de l'acompte, livraison à prix et délai convenu) : https://www.maisonsbrand.fr/informations-legales/.Agence BRAND Maisons Individuelles de Colmar (68000)
- Téléphone :
- 03 89 41 28 88
- Adressse :
- 65 rue de la Semm
68000 Colmar, France
